| Auslober | Stadt München | |
| Architekt | Andreas von Fürstenberg | |
| Leistungsphasen | 1-2, Wettbewerb | |
| Gesamtnutzfläche | 9.400 m² | |
| Umbauter Raum | 47.100 m³ | |
| Baukosten | 19 Mio. € |
Baubeschreibung:
Der Auslober wünschte die Verwendung von Materialien wie Stahl, Glas und Naturstein. Der Entwurf sah eine Komposition von klaren und zurückhaltenden Baukörpern vor.
Eine vorgesetzte Fassadenebene aus Naturstein bildet die Raumkanten entsprechend der Umgebungsgebäude. Eine dahinterliegende Ebene aus Glas bildet die thermische Hülle und die Kombination der Ebenen schafft erlebnisreiche Aus- und Einblicke.
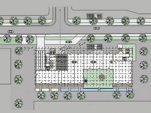
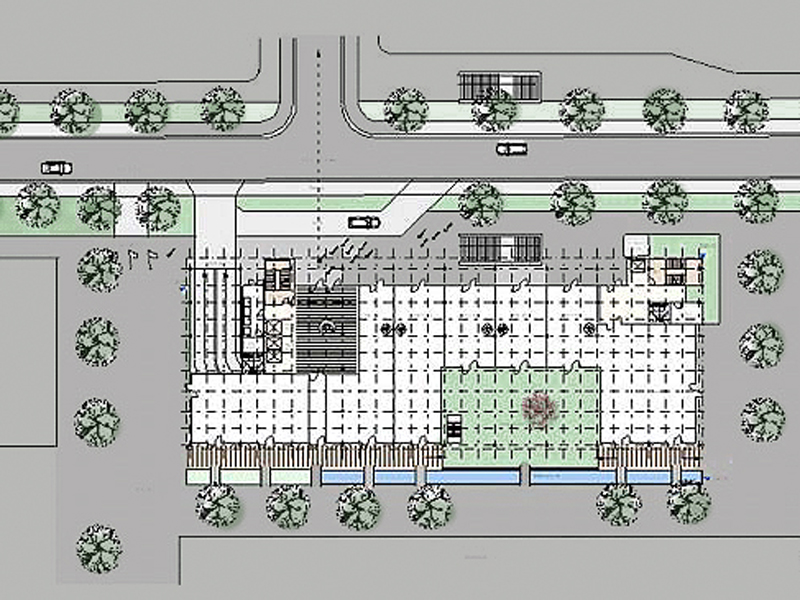
Erschließung
Der Haupteingang ist an der Querstraße angeordnet und ermöglicht einen großzügiges internen Erschließungsfoyer.
Die Treppenhäuser werden an der Nordfassade positioniert und deren exponierte Lage bewirken angenehme Nutzungen mit Überblick auf die Straße und das Gebäude.
Konstruktion
Das Achsraster von 5,00 m x 7,50 m (6,00 m x 7,50 m) schafft eine wirtschaftliche Deckenhöhe und zudem ein hohes Maß an Flexibilität.
Ein auskragender und schwenkbare Sonnenschutz aus Lamellen vermeidet eine Überwärmung im Sommer und bewirkt eine Lichtumlenkung in das Gebäudeinnere.