von Fürstenberg Architektenvon Fürstenberg Architekten

Deutscher Pavillon EXPO 2000 Hannover

Architekt    Andreas von Fürstenberg
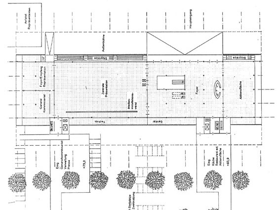
Baugrund    8.500 m²
Freifläche    4.000 m²
Höhendifferenz    2,00 m
Traufhöhe    18,00 m
Publikumsbereich    3.000 m²
Ausstellung    8.500 m²
Repräsentation    750 m²
Pressezentrum    800 m²
Verwaltung    920 m²
Service und Funktion    2.100 m²
Gesamtfläche    16.000 m²

Baubeschreibung:

Präambel
Die Weltausstellung im Jahr 2000 in Hannover steht unter dem Motto „Mensch-Natur-Technik“.
Sie soll ein Forum für die Verständigung der nachhaltigen Entwicklung sein.
Nach Ablauf der Weltausstellung soll das Bauwerk einer dauerhaften wirtschaftlichen Nutzung zugeführt werden.

Entwurf
Die „Linse“ ist der Leitgedanke des Entwurfs.
Die Verwendung der Linse in allen Bereichen der Technik ist einen der wichtigsten Voraussetzungen für den Menschen die Natur zu verstehen und sich zu entwickeln. Die übergroße Linse wird zum Symbol für Technik und Naturverständnis der Menschheit.

Expo_Ps_gr_g_Titelbild_5

Expo_Gr_gr_g

 

 

 

Comments are closed.